Ein weißer Wohnblock mit Balkon in Hoyerswerda

Büroräume im Zentrum von Hoyerswerda

Dietrich-Bonhoeffer-Straße 1 - 02977 HoyerswerdaStadtzentrum

Fläche
ca. 74,49 m²

Objekt-Nr.:1/3009/3/195

jetzt anfragen

Ausstattung & Preise

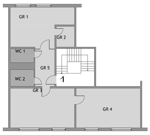
- 3 große Büroräume - 1 Serverraum - Sanitäreinrichtungen - 1 Wartebereich

Kaltmiete
507,00 €
Nebenkosten
108,00 €
MwSt.
116,85 €
Warmmiete inkl. MwSt.
731,85 €
Kaution
1.521,00 €

Energieausweis

Ausweisart
Verbrauch
Wertelklasse
E
Wärmewert
192.00

Hinweis

Dieses Exposé stellt kein vertragliches Angebot dar. Für die Richtigkeit und Vollständigkeit der im Exposé enthalten Daten wird keine Haftung übernommen. Änderungen der Angebote sowie eine zwischenzeitliche Vermietung behalten wir uns vor.

SIE HABEN INTERESSE?

Vereinbaren Sie am besten noch heute einen Besichtigungstermin. Unser Team Vermietungsmanagement freut sich über Ihre Anfrage.

Telefon
03571 475 - 200
Fax
03571 475 - 333
E-Mail
vermietung@wh-hy.de
jetzt anfragen